Nobis
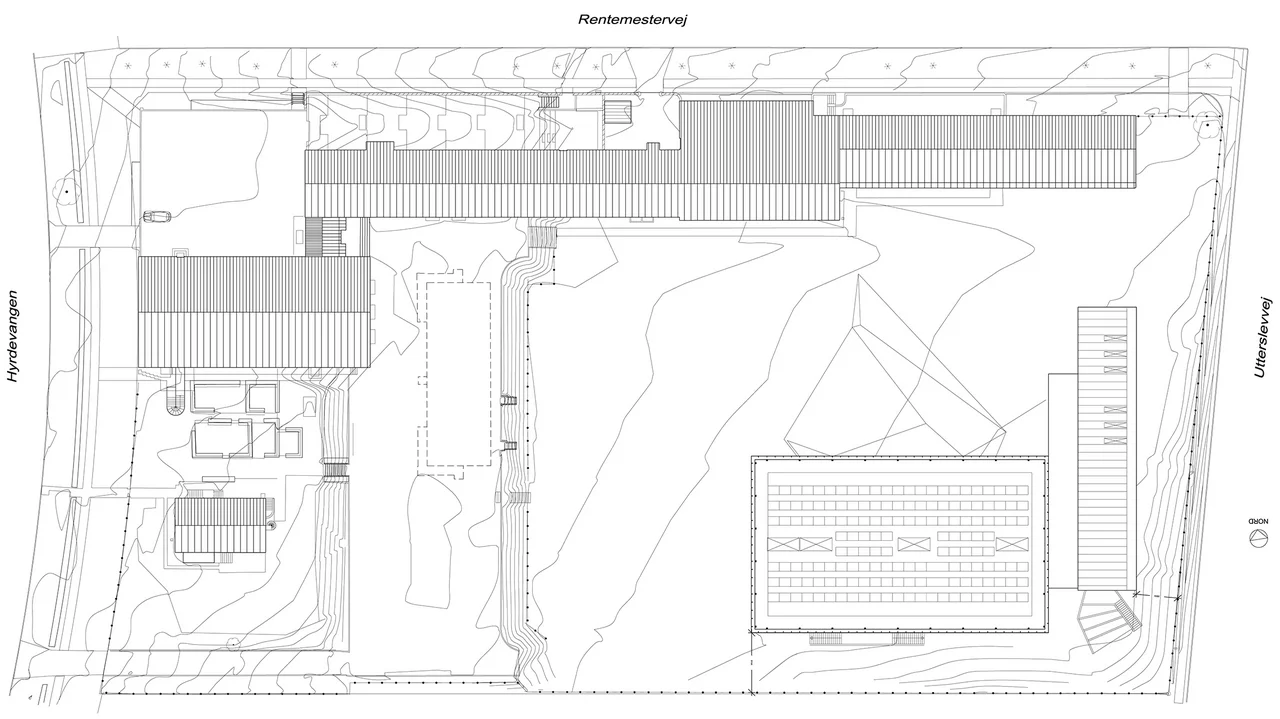
En idrætshal i en varieret bymasse med funktioner der indeholder dansesal, fitnessrum og teorilokale.
| Type: | Opførelse af idrætshus | |
| År: | 2011 - 2014 | |
| Status: | Realiseret | |
| Areal: | 2200 m2 | |
| Budget: | 38 mio. | |
| Bygherre: | HF-Centret Efterslægten | |
| Arkitekt: | LAARK ApS | |
| Bygherrerådgiver: | Thymark.dk ApS | |
| Ingeniør: | Kristian Rahbæk A/S | |
| Entreprenør: | SVALA Byggestyrring | |
| Rådgivning Lyd og Lys: | LAARK ApS | |
| Bæredygtighed: | LAARK ApS | |
| Funding: | Støttet af A.P. Møller Fonden |

Projektet er en opgave i at bygge en idrætshal i en ellers varieret bymasse. Bygningens funktioner indeholder dansesal, fitnessrum, teorilokale og etablering af udearealer. Trykket ned i landskabet ligger hallen i niveau med den eksisterende skole. Lys og luftlommer omkring voluminerne accentuerer ankomsten i de forskellige niveauer og forbinder landskabet med det indre program. Den luftige lagdelte nordvendte facade binder det ydre og det indre sammen.
NOBIS afslører ved sin opløste facade, en indre hemmelighed, en indre struktur, en opbygning i lag på lag, en arena omkring kampen. Bag ved den nordvendte facade afsløres hallens statik, søjlerne, i siluetform. Her skal der kæmpes mellem søjlernes råhed, monumentalitet og det diffuse lys omkring søjlerne og væggen.










Støttet af A.P. Møller Fonden.
Andre projekter













