KVUC Aula
Et samlingssted for studerende på Københavns Voksenundervisningscenter og tilhørende grupperum.
| Type: | Renovering og ombygning | |
| År: | 2016 - 2023 | |
| Status: | Realiseret | |
| Areal: | 800 m2 | |
| Bygherre: | KVUC | |
| Arkitekt: | LAARK ApS som totalrådgiver | |
| Bygherrerådgiver: | Niels Anker Jørgensen, Engarde rådgivning ApS | |
| Ingeniør: | Bang og Beenfeldt A/S | |
| Ingeniør Lyd: | Gade og Mortensen akustik A/S | |
| Rådgivning Lyd og Lys: | LAARK ApS | |
| Entreprenør: | Tømrer- og Snedkermester Jacob Pedersen A/S | |
| Funding: | Støttet af A.P. Møllerfonden |

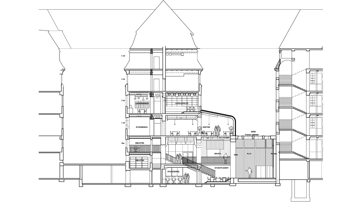
Københavns voksenundervisningscenter flyttede i 2005 ind i den gamle kontorbygning på Vognmagergade 8 i København. Skiftet fra kontorbygning til skole medførte naturligvis, at bygningen manglede nogle af de funktioner og bygningsmæssige kendetegn, som karakteriserer en moderne skole. En væsentlig ting, som den nye skole manglede, var et samlingssted for skolens studerende og ansatte.
LAARK har transformeret skolens tidligere kælderrum til en 800 m2 stor aula i hjertet af den over 110 år gamle bevaringsværdige bygning.
Udgangspunktet for projektet var en dyb forståelse for betydningen af et fælles samlingspunkt for de studerende på KVUC. Målet var ikke kun at skabe et fysisk rum, men at transformere det før livløse rum til et levende mødested, som kunne danne rammerne om det sociale liv og fællesskab i en atmosfære, der fremmer samarbejde, læring og trivsel.
Det tidligere kælderrum var smalt, manglede en entydig retning og lagde på ingen måde op til ophold, men snarere hurtig gennemgang. Det nye samlingspunkt lever op til bygningens imponerende ydre og forsyner de studerende med nye rammer for fællesskabet og lærere med nye rammer for undervisningen.
Tilmurede felter i den eksisterende konstruktion er revet ned for at inddrage de gamle små rum til nye læsenicher og grupperum. De eksisterende betonsøjler er bevaret og har fået nyt liv i den nye kontekst. Mellem de massive søjler er balkoner spændt ud med kig til det nye træskrin, som man føres ned til ad en stor trappe som også giver plads til ophold. Det eksisterende gårddæk, der dannede taget over kælderrummet, er fjernet og erstattet af en ny loftkonstruktion i glas og limtræ, som giver et smukt dagslysindfald i træskrinet.
Projektet omfattede desuden et stort lyd- og lysprojekt. Gennem lyssætning og inspirerende akustiske tiltag samt brugen af varme materialer skabes en stoflig og stemningsfuld atmosfære, som understøtter et levende og inspirerende studiemiljø til faglig fordybelse og samvær.
LAARK har arbejdet som totalrådgiver på projektet og har derudover rådgivet indenfor indretning, lyssætning og lyd.








Støttet af A.P. Møller Fonden
Andre projekter













