Østerbrogade
Ombygning af tagetage til otte nye tagboliger og etablering af nyt fælles opholdsareal.
| Type: | Ombygning til tagboliger | |
| År: | 2020 - | |
| Status: | Under udvikling | |
| Areal: | 585 m2 | |
| Bygherre: | Ejendomsselskabet Ole Bruun ApS | |
| Arkitekt: | LAARK ApS | |
| Ingeniør: | Bang & Beenfeldt A/S & Gert Carstensen A/S | |
| Ingeniør El: | Gert Carstensen A/S |

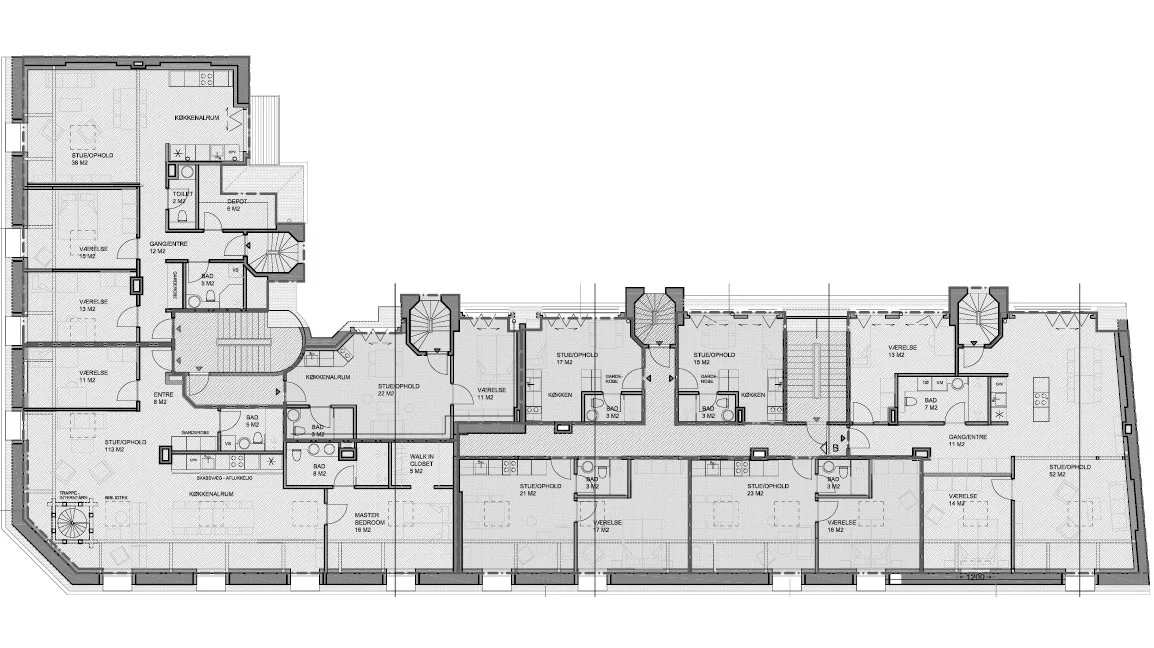
Projektet omfatter ombygning af tagetagen på den gamle Københavnerejendom fra 1905 på Østerbrogade. Der etableres i alt otte nye tagboliger samt en ny tagterrasse.
Bygningen er klassificeret som bevaringsværdig 4. I arbejdet med en bevaringsværdig bygning som denne, er det vigtigt at gennemføre ombygningen med respekt for det eksisterende og de kultur- og bygningshistoriske værdier.
Ved inddragelsen af de eksisterende loftrum gøres der plads til etableringen af de otte nye lejligheder, som bygges i størrelser fra 27 m2 til 133 m2. Der vil både være store penthouselejligheder og mindre kollegieværelser og boliger til studerende. Transformationen giver mulighed for en divers beboersammensætning, som skaber liv og omfavner forskellighed.
Projektet lægger op til etableringen af en ny tagterrasse, for at skabe et nyt og indbydende fællesareal for alle bygningens beboere.








Andre projekter









