Møllegade
Ombygning og etablering af fire nye tagboliger i etageejendom fra 1880’erne.
| Type: | Ombygning | |
| År: | 2021 - | |
| Status: | Under udvikling | |
| Areal: | 330 m2 | |
| Bygherre: | Ejendomsselskabet Ole Bruun ApS | |
| Arkitekt: | LAARK ApS | |
| Ingeniør Konst.: | Bang & Beenfeldt A/S | |
| Ingeniør El: | Gert Carstensen A/S |

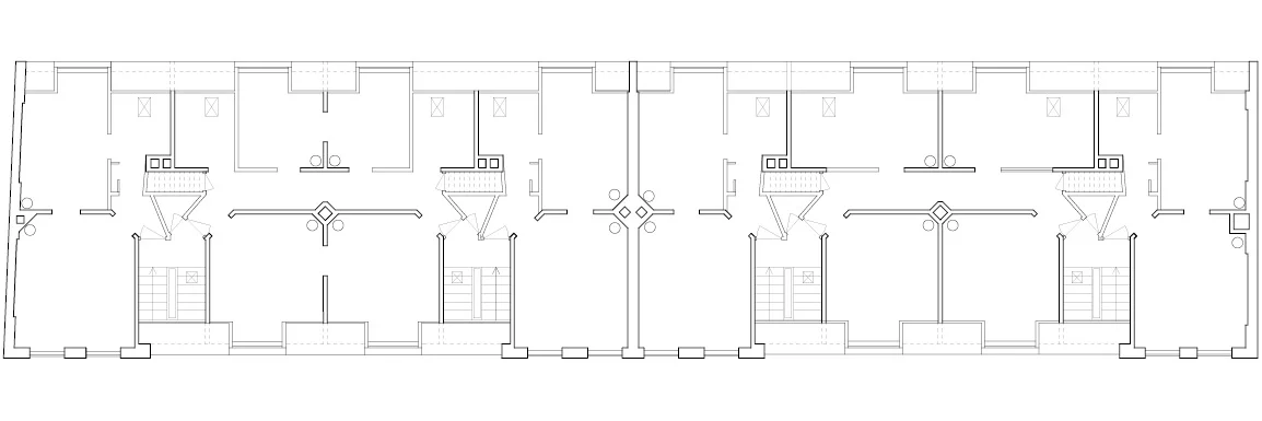
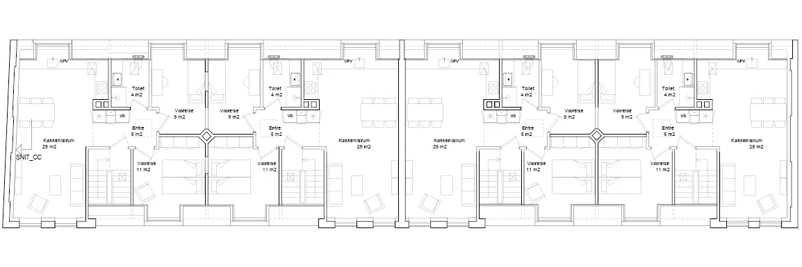
Projektet omfatter ombygning af tagetagen på eksisterende etageejendom på Møllegade fra 1880’erne. Der etableres fire nye tidssvarende tagboliger til udlejning samt en tagterrasse.
I arbejdet med en bevaringsværdig bygning som denne, er det vigtigt at gennemføre ombygningen med respekt for det eksisterende og de kultur- og bygningshistoriske værdier.
I ombygningen af ejendommen åbnes dele af tagetagen op til kip og der etableres nye kviste mod gården med udgangspunkt i samme rytme som mod gaden.
Der arbejdes med respekt for det nuværende facadeudtryk og bygningens materialer. Ombygningen af tagetagen medfører ikke ændring i bygningsudtrykket. Der tilføjes ovenlys mod gaden og gården for at udnytte dagslyset. De nye ovenlys integreres diskret i den eksisterende skiffertagflade og indbygges i proportioner, som underordner sig de eksisterende kviste og placeres i samme vertikale linje i forhold til vinduerne i de underliggende etager, for at bevare bygningens nuværende udtryk.
På gårdsiden etableres tagaltaner, som indpasser sig i tagfladen mellem bygningens to kviste, og bliver dermed en tilføjelse, som falder på plads i det eksisterende på en diskret måde.





Andre projekter









