Gl. Kongevej
Konvertering fra erhverv til bæredygtige boliger samt etablering af nye grønne arealer.
| Type: | Bæredygtig ombygning | |
| År: | 2023 - | |
| Status: | Under udvikling | |
| Areal: | 458 m2 | |
| Bygherre: | Akademiker Pensionskasse | |
| Arkitekt: | LAARK ApS | |
| Ingeniør: | Thymark.dk ApS | |
| Rådgivning Lyd og Lys: | LAARK ApS | |
| Bæredygtighed: | LAARK ApS |

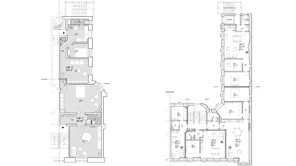
Transformationsprojektet omfatter konvertering af eksisterende erhvervslejemål til bæredygtige boliger samt etablering af indbydende bæredygtige grønne opholdsarealer. Den eksisterende ejendom på Gl. Kongevej blev opført i 1892 og indeholder i dag både erhverv og boliger.
Konverteringen fra erhverv til bolig omfatter etablering af 6 nye separate lejligheder. Projektet lægger op til en divers beboersammensætning, hvor unge som gamle og familier kan bo side om side. Hver lejlighed er skræddersyet til moderne beboelsesbehov. De sparsomme kvadratmeter ser vi som en mulighed for at skabe gode arkitektoniske løsninger, der styrker kvaliteten af byens gamle bygninger.
I forbindelse med ombygningen renoveres det eksisterende gårdrum og en ny tagterrasse etableres, for at skabe nye indbydende opholdsarealer for alle beboerne, som skal danne rammerne for det levede liv. De nye opholdsarealer transformeres med afsæt i menneskets sanser og behov, for at skabe et attraktivt, behageligt og sanseligt rum for det enkelte menneske og for fællesskabet. Gårdrummet og den nye tagterrasse transformeres til bæredygtige grønne oaser midt i storbyen, hvor beplantning og insekthoteller er med til at opretholde en sund økobalance.






Andre projekter









