Nordrefrihavnsgade
Etablering af nye tagboliger i eksisterende tagetage samt forbedring af ejendommens fællesareal.
| Type: | Ombygning til tagboliger | |
| År: | 2019 - | |
| Status: | Under udvikling | |
| Areal: | 526 m2 | |
| Bygherre: | Ejendomsselskabet Ole Bruun ApS | |
| Arkitekt: | LAARK ApS | |
| Ingeniør: | Bang & Beenfeldt A/S | |
| Ingeniør El: | Gert Carstensen A/S |

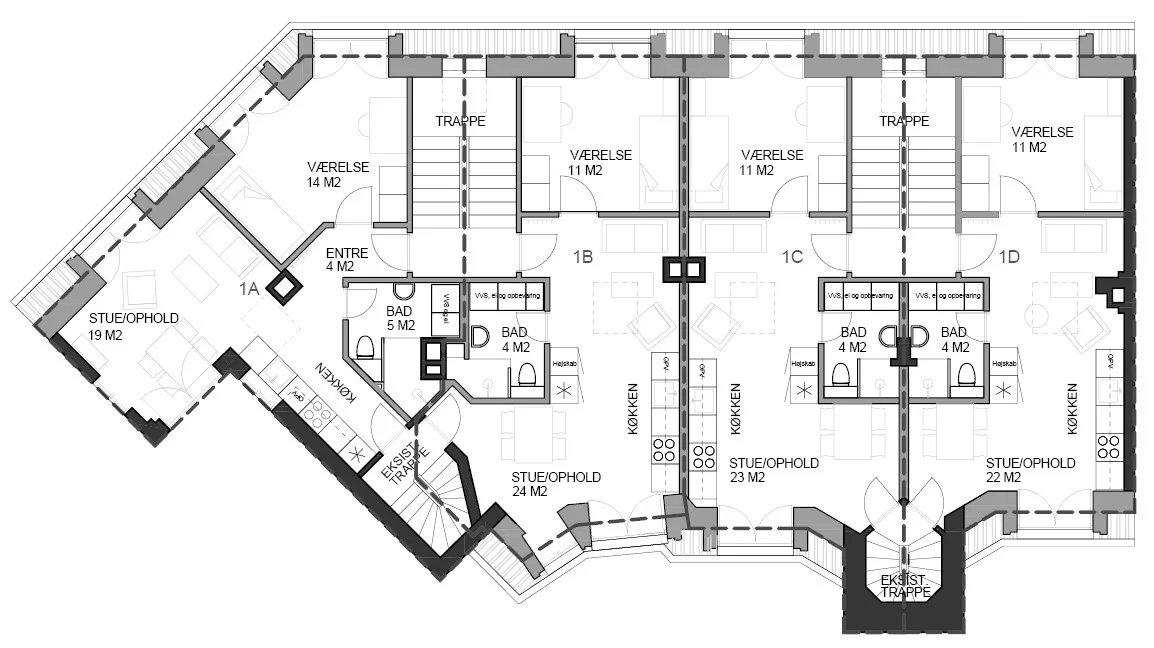
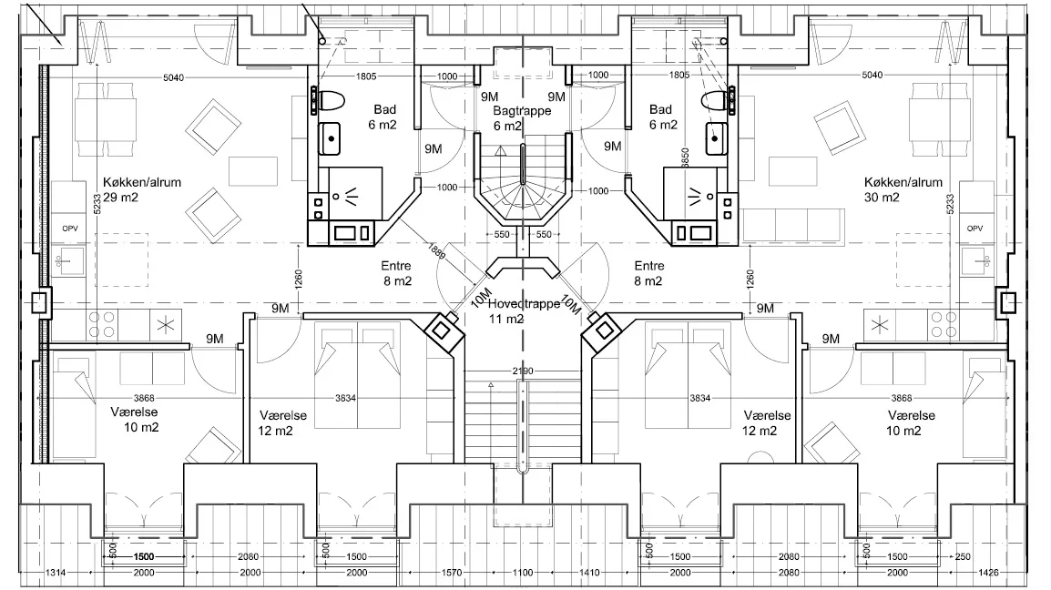
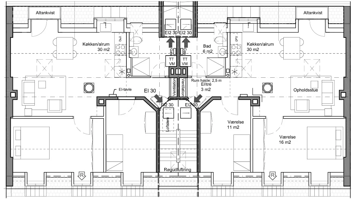
Projektet på Nordrefrihavnsgade omfatter opførelsen af i alt otte nye tagboliger, som etableres i tre forskellige bygninger samlet omkring et fælles gårdrum for at skabe nye gode boliger i området.
De tre bygninger er alle bevaringsværdige og vores arbejde udføres derfor med respekt for den eksisterende arkitektur i forhold til arkitektonisk greb, materialer og detaljer for at bevare bygningernes oprindelige karakter.
Transformationen af de eksisterende bygninger omfatter etablering af nye tagboliger i uudnyttede tagrum, som transformeres fra tørreloft til nye attraktive lejligheder. De allerede udnyttede tagetager ombygges for at skabe nye, moderne lejligheder, der lever op til nutidens behov. I denne forbindelse etableres også nye kviste og kvistaltaner mod gården.
Ændringerne i tagformen udføres så den fremstår neutral for det samlede udtryk hos den eksisterende og de omkringliggende bygninger.
I vores arbejde med det samlede bygningsanlæg udarbejder vi modeller for at analysere dagslysforhold i det fælles gårdrum for at sikre gode dagslysforhold for alle etager, da dette er en meget betydningsfuld faktor for en boligs kvalitet med stor indflydelse på vores sundhed og velvære.
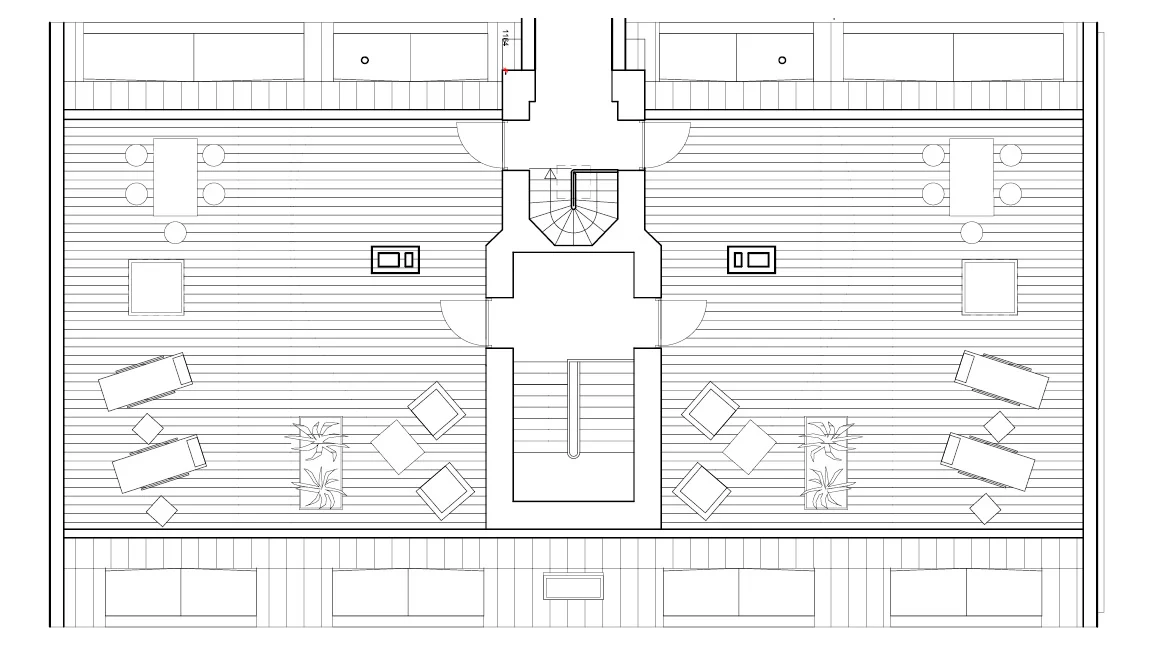
Der er allerede gode friarealer med træer, buske og små græsplæner. Vi forstærker disse fælles, grønne uderum for at gøre dem endnu mere attraktive og indbydende. Derudover etableres en fælles tagterrasse på den eksisterende garagebygning, for at skabe et nyt attraktivt opholdsareal for beboerne.









Andre projekter









