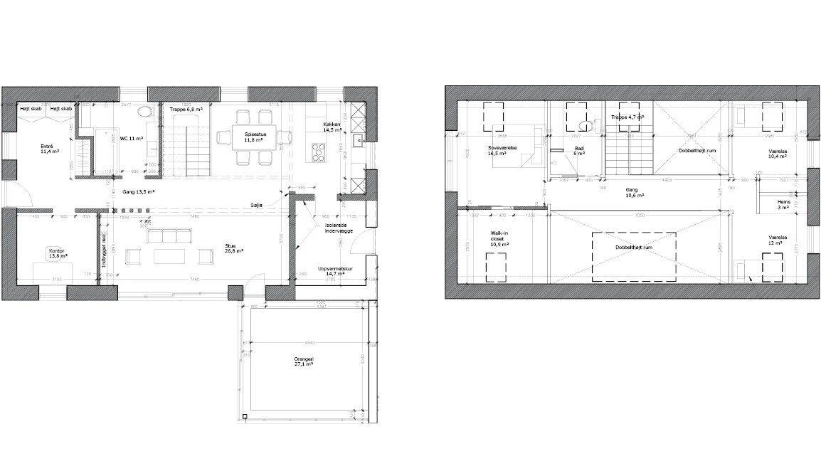
Enfamiliehus i Roskilde
Et enfamiliehushus med udgangspunkt i monolitten.
| Type: | Ombygning | |
| År: | 2017 | |
| Status: | Realiseret | |
| Areal: | 230 m2 | |
| Bygherre: | Privat | |
| Arkitekt: | LAARK ApS | |
| Ingeniør: | Thymark.dk ApS | |
| Entreprenør: | Tømrer- og Snedkermester Jacob Pedersen A/S |

Projektet omfatter ombygning af en ejendom i Roskilde. Enfamiliehuset tager udgangspunkt i monolitten, en renovering som udvikler sig til en ny skal, hvor det gamle hus bor indeni. Huset fremstår arkitektonisk stærkt, hvor der er fokus på det, som skiller sig ud. Her bearbejdes træmaterialet, som føres fra facade til tag, og kommer dermed til at stå som en monolitisk perle. Projektet, som tog udgangspunkt i et renoveringsgreb, udviklede sig til et totalkoncept, hvor der har været fokus på de konceptuelle arkitektoniske bearbejdelser.








Andre projekter









