Helsingborggade
Vedligeholdelse og renovering ved sammenlægning af rehabiliteringscentre.
| Type: | Renovering og ombygning | |
| År: | 2021 - | |
| Status: | Under udvikling | |
| Areal: | 1000 m2 | |
| Bygherre: | Sundheds- og Omsorgsforvaltningen | |
| Arkitekt: | LAARK ApS | |
| Bygherrerådgiver: | Peder Hansen SUF | |
| Ingeniør: | Thymark.dk ApS | |
| Entreprenør: | Tømrer- og Snedkermester Jacob Pedersen A/S |

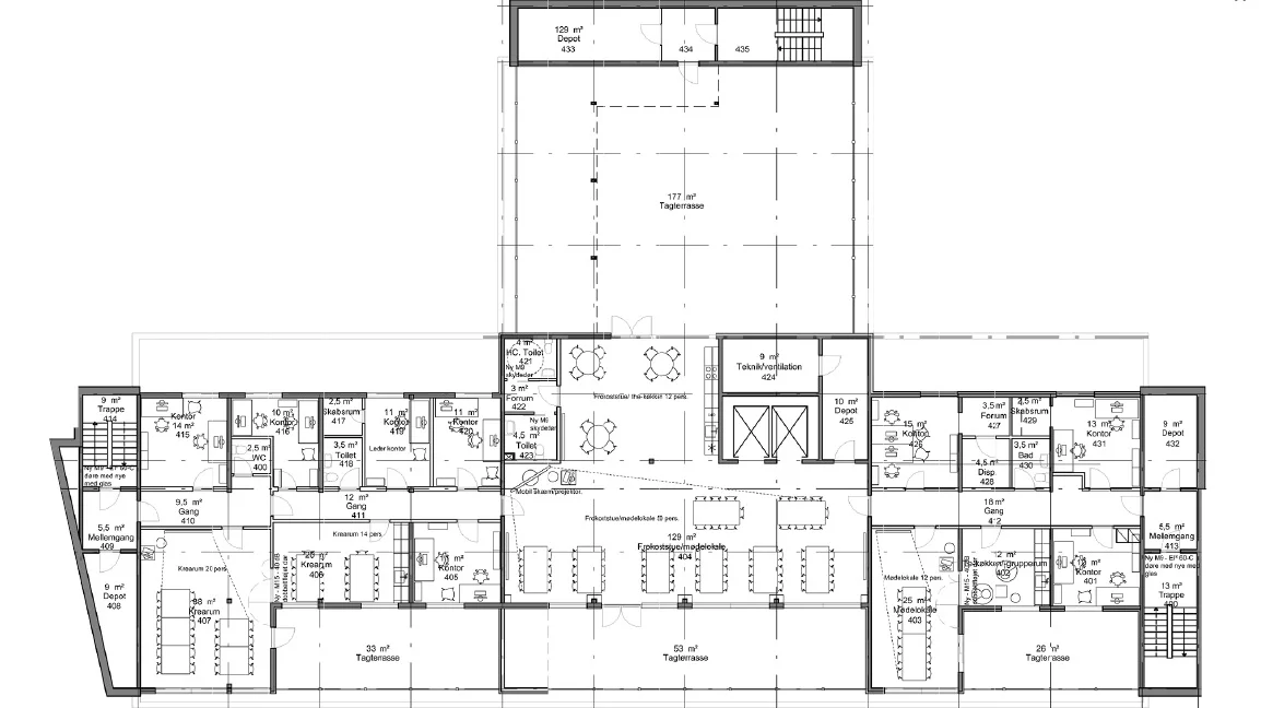
Projektet omfatter en gennemgående renovering af Kildevæld Sogn Plejehjem.
LAARK har arbejdet som totalrådgiver i forbindelse med renovering og ombygning af plejehjemmet. Projektet omfatter istandsættelse og transformation af stueetagen til 4. sal samt etableringen af en ny tagterrasse. I stueetagen er der gjort plads til gode træningsfaciliteter for plejehjemmets beboere. På 1. til 4. sal bygges der om med henblik på etablering af nye kontorlokaler for Uddannelse København. I takt med at antallet af medarbejdere øges, er der behov for flere kontorer samt et større behov for mødelokaler. LAARK har stået for indretningsprojektet, hvor de gamle plejeboliger er blevet omdannet til kontorer. I denne transformation har vi taget hensyn til de behov, der er specifikke for kontorbrug, for at sikre optimale arbejdsvilkår. Projektet indeholder derudover renovering af lofter, vægge, gulve og EDB-kontorarbejdsstationer, belysning mm.
De eksisterende gangarealer har vi transformeret ved etableringen af nye ovenlyskasser, som har skabt et brugbart areal med lys og nyt liv.
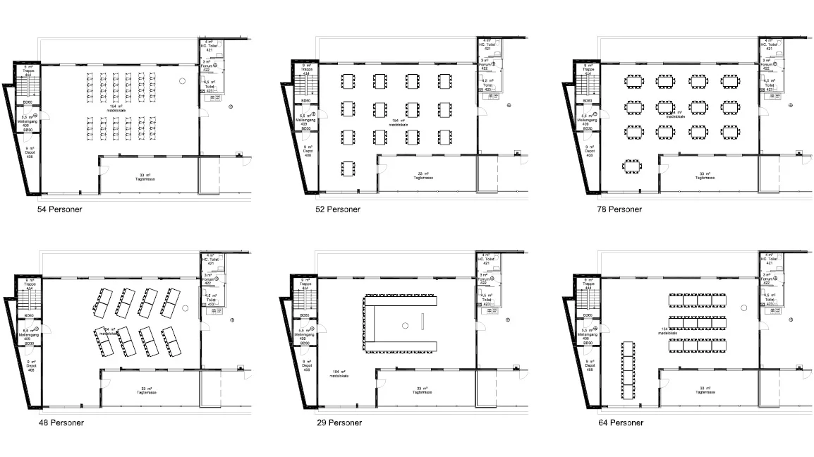
Den nye grønne tagterrasse, Japansk Forår, giver medarbejderne mulighed for bevægelse foruden lange gange og åbne kontormiljøer. Luft, duft og frirum. Her er der taget udgangspunkt i tanken om det japanske forår. En opdeling skaber forskellige former for ophold, og introducerer et organisk miljø i en tung bygning. Træet og det grønne bliver brudt med de røde fliser, som har taget udgangspunkt i det traditionsrige kirsebærtræ. Grønne tage er et smukt og klimavenligt indslag i bymiljøet.









Andre projekter




