Bystævneparken
Renovering og ombygning af center for rehabilitering og akutpleje.
| Type: | Renovering | |
| År: | 2021 | |
| Status: | Realiseret | |
| Areal: | 2717 m2 | |
| Bygherre: | Sundheds- og omsorgsforvaltning, Københavns Kommune | |
| Arkitekt: | LAARK ApS | |
| Bygherrerådgiver: | Peder Hansen SUF | |
| Ingeniør: | Gert Carstensen A/S | |
| Entreprenør: | HOLM A/S |

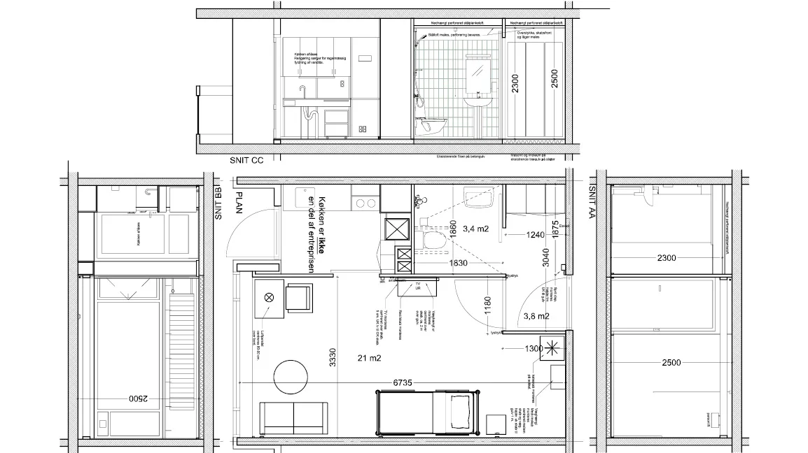
Projektet omfatter vedligeholdelse og renovering af gangareal og fællesområder i forbindelse med sammenlægning af rehabiliteringscenter for Københavns kommune ved Bystævneparken 18. Da vi har at gøre med rehabilitering og akutpleje har der været særligt fokus på lyssætning, håndtering af medicinrum, skyllerum, gangarealer, ergoterapi, fysioterapi, depotrum og aktivitetsrum.
Som en del af renoveringen under Covid, har tegnestuen været med til at tage foranstaltninger, så Bystævneparken kunne, hvis nødvendigt, bruges som midlertidigt nødhospital.







Andre projekter




