Frederiksberg Bredegade
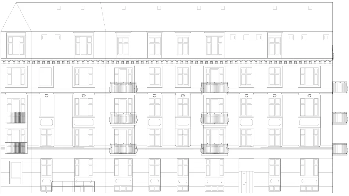
Altanopsætning og efterisolering af gavle samt restaurering af facade på bevaringsværdig ejendom fra 1900 på Frederiksberg.
| Type: | Ombygning af bevaringsværdig bygning | |
| År: | 2020 | |
| Status: | Realiseret | |
| Areal: | 800 m2 | |
| Budget: | 10 mio. | |
| Bygherre: | A/B Frederiksberg Bredegade | |
| Arkitekt: | LAARK ApS | |
| Entreprenør: | Stenklint A/S |

Altanopsætning og efterisolering af gavle samt restaurering af facade på bevaringsværdig ejendom fra 1900 på Frederiksberg.
Projektet omfatter etablering af nye altaner og trapper til gårdmiljø. Døre og vinduer ved altanerne er udskiftet med vinduer, der passer i den eksisterende bygnings udtryk. Altanerne er lavet i mørkegrønt malet stål og Okume brædder.
Altaner og trapper er udført i et enkelt formsprog, der passer sammen med nabobygningernes altaner. Samspillet mellem de nye altaner og den eksisterende bygnings høje gavle i blank mur giver et industrielt, urbant præg til gårdrummet. Foruden dette har man foretaget en restaurering af facaden.



Andre projekter




